§A¦n¡AÅwªï¨Ó¨ì¥@¾Tºô
[½Ðµn¿ý]
[§K¶Oª`¥U]
°Ó°È¤¤¤ß
µo¥¬¨Ñ¨D
²Åé
¤â¾÷ª©
^¤åª©
¥@¾Tºô
¾T·~²£«~
¾T·~²£«~
¾T·~³]³Æ
¨DÁÊ«H®§
¾T·~©Û°Ó
¾T·~¼t°Ó
¤µ¤é¾T»ù
¾T·~¸ê°T
¾T·~®i·|
²£«~
¨DÁÊ
³]³Æ
¤½¥q
¦æ±¡
¸ê°T
·j¾T
ªñ´Á·j¯Á
²MªÅ
·j¯Á±Æ¦æ
¤u·~¾T«¬§÷
ªá¯¾¾TªO
6061¾TºÞ
5052¾TªO
¾Tºä³U
¬ï¤Õ¾TªO
6061¾T´Î
¸ÁºÛ¾TªO
«O·Å¾T¨÷
¦a°ì²Ó¤À¡G
ªe«n¾TªO
ªe¥_¾T«¬§÷
¤sªF¾T±a
¤W®ü¾TªO
ªe«n¾T±a
¼sªF¾TºÞ
¤sªF¾Tºä
ªe«n¾Tºä
¼sªF¾T´Î
¤W®ü¾T´Î
¶i¤f¾TªO
¦è«n¾T
§ó¦h
±z·í«eªº¦ì¸m¡G
¥@¾Tºô
¾T·~²£«~
¾T«¬§÷
´¼¼z¡§¬E¹_¦¡¡¨Áô®Ø±Æµ¡¬Á¼þ¹õùÙ
´¶³q·|û
´¼¼z¡§¬E¹_¦¡¡¨Áô®Ø±Æµ¡¬Á¼þ¹õùÙ
«H®§¦WºÙ¡G
´¼¼z¡§¬E¹_¦¡¡¨Áô®Ø±Æµ¡¬Á¼þ¹õùÙ
©Ò
¦b
¦a¡G
¼sªF¬Ù ¦ò¤s¥«
§ó·s®É¶¡¡G
2020-08-26
¿à¬ü¬ü
¤k¤h
¼sªF¿³µo¾T·~¦³¤½¥q
¹q¸Ü¡G
0757-66695200
¤â¾÷¡G
13827776035
¥[¤J¦¬ÂÃ
Á|³ø
¸Ô²Ó«H®§
«~µP¡G
¿³µo¾T·~
³W®æ¡G
©w¨î
§÷½è¡G
¾T¦Xª÷
²£¦a¡G
¼sªF
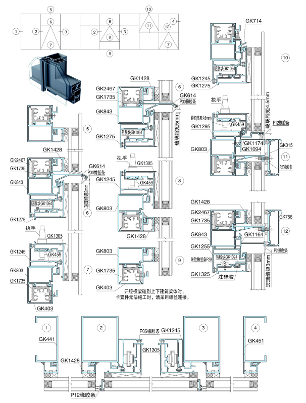
°ê®a±M§Q´¼¼z¡§¬E¹_¦¡¡¨Áô®Ø±Æµ¡¬Á¼þ¹õùÙµ²ºc¥Ü·N¹Ï¡]65mm¡^
Áp«Y¤è¦¡
¼sªF¿³µo¾T·~¦³¤½¥q
¬d¬Ý¥þ³¡²£«~
¶i¤J®iÆU
Áp«Y¤H¡G
¿à¬ü¬ü
¤k¤h
¹q¸Ü¡G
0757-66695200
¶Ç
¯u¡G
0757-0757-66695200
¤â¾÷¡G
13827776035
¦a§}¡G
¼sªF¬Ù ¦ò¤s¥« ¼sªF¬Ù¦ò¤s¥«¤T¤ô°Ï¤T¤ô°Ï¼Ö¥Âí±j·~¤j¹D23¸¹23®yº¼h¡BF22¡]¦í©Ò¥Ó³ø¡^
¨ÑÀ³°Ó¨ä¥L¨ÑÀ³«H®§
¹õùÙ
Áô®Ø¹õùÙ
¼sªF¾T«¬§÷
¿³µoªùµ¡¦X¶¾T«¬§÷
¿³µo¥Á¥Î¸Ë¹¢¾T«¬§÷
¿³µo¾T§÷¾T¦Xª÷ªùµ¡«¬§÷
¿³µo¾T·~¤º¥~Âù¦âªùµ¡«¬§÷
¿³µo¹õùÙ¾T«¬§÷¹õù٥߬W
¿³µo¾T¦Xª÷ªùµ¡«¬§÷°ò§÷
ÁÙ¨S§ä¨ì¦X¾Aªº²£«~¡H
01
§Ö³tµo¥¬¨DÁÊ«H®§
§Ö³tµo¥¬
¤U¤@¨B
02
¸Õ¸Õ¥H¤U¬ÛÃö·j¯Á¡G
03
Áp«Ycnal«ÈªA¡G
P¹q¡G
0371-63388900
°¨¤W±Ò°Ê±zªº§Ö³t±ÄÁʳq¹D¡I
04
¬ÛÃö²£«~
¼öªîÀè¦â¾T¨÷¥Í²£¼t®a
¤sªF²³¾T¾T·~·Ò¿û²æ®ñ¾T±ì12mm¾T½u´_¶
°ª±j¾É¹q¡P@»G»´½è¾T¦Xª÷3.3591¾TªO
¹q¤O§¡À£Àô¾TºÞ
Àç¤f1235¾Tºä»ù®æ
¤Ñ¬zÀR®ü°Ï¾T³æªO¼t®aÂù¦±¾TªO¹Ï¯È²`¤Æ
¼sªF¿³µo¾T·~¦³¤½¥q
|
Áp«Y¤H¡G
¿à¬ü¬ü
¤k¤h
|
¹q¸Ü¡G
0757-66695200
|
¤â¾÷¡G
13827776035
¸Ô²Ó
«H®§
Áp«Y
¤è¦¡